260 Imp. de l'Ours
Austin, Estrie J0B1B0
Maison à étages | MLS: 9036693
1 495 000 $
Description
ÉLÉGANCE ET SÉRÉNITÉ SUR 2.5 ACRES BOISÉ AVEC ÉTANG. Construite en 2023 par GESTION FIVE STARS, cette propriété d'exception bénéficie de la garantie de maison neuve GCR. Elle offre un cadre de vie unique entre modernité et nature. Son architecture raffinée met en valeur des matériaux nobles et une luminosité remarquable. Le salon, avec son plafond cathédrale de 18' et ses grandes baies vitrées, offre une vue panoramique sur le lac. La suite principale, avec terrasse privée, garantit confort et intimité. Quatre chambres, un bureau et trois salles de bain complètent cet espace raffiné. À proximité du Mont-Orford, de Magog et de l'autoroute 10,
-Une construction GESTION FIVE STARS
Évadez-vous dans un décor enchanteur où l'élégance rencontre la sérénité. Sise sur un terrain d'environ 2,5 acres, cette somptueuse propriété de construction récente se distingue par son harmonie avec la nature et son emplacement privilégié, sans voisin à l'arrière, entourée d'arbres matures.
Dès l'entrée, le raffinement se révèle dans chaque détail. Matériaux de qualité, design moderne et intemporel se conjuguent pour offrir une atmosphère élégante et chaleureuse. Le rez-de-chaussée, véritable pièce maîtresse de la demeure, propose une cuisine de rêve dotée d'un vaste îlot central, parfaite pour recevoir. Le garde-manger et le cellier vitré ajoutent une touche de raffinement à cet espace convivial.
La salle à manger, baignée de lumière, s'ouvre sur une terrasse couverte, idéale pour les repas en plein air. Le salon, quant à lui, est un coup de coeur assuré avec son plafond cathédrale, ses immenses fenêtres laissant entrer une lumière naturelle abondante et son foyer au propane qui réchauffe l'ambiance avec une touche de convivialité.
Avec ses trois chambres à coucher, ses deux bureaux, trois salles de bain complètes et une salle d'eau, cette demeure répond à tous les besoins avec distinction. À l'étage, la suite principale séduit par son walk-in sur mesure, sa salle de bain privée et son accès à une terrasse intime surplombant le lac, un lieu de rêve pour vos débuts de journée.
Le sous-sol, entièrement aménagé, propose un espace polyvalent et chaleureux avec planchers chauffants au glycol, parfait pour les saisons froides.
Construite par GESTION FIVE STARS, cette propriété bénéficie de la garantie de maison neuve GLR, vous offrant une tranquillité d'esprit et une protection accrue pour votre investissement.
Idéalement située à Austin, à seulement 10 minutes du Mont-Orford, 10 minutes de Magog et à proximité de l'autoroute 10, cette propriété conjugue parfaitement nature, confort moderne et accessibilité. Une opportunité rare d'adopter un art de vivre incomparable, en toute intimité
Inclus : Luminaires, lave-vaisselle, rideaux, pôles à rideaux, borne recharge électrique intérieure garage, système de son maison intégrer complet , aspirateur centrale et accessoires.
Exclus : Meubles meublants, électroménager, outils dans garage et étagères, borne recharge électrique extérieure, antenne starlink.
Location
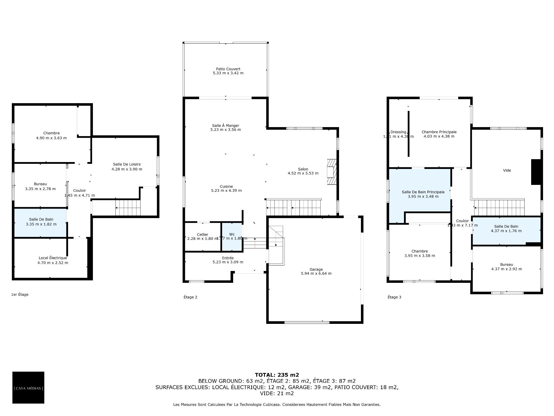
Détails des pièces
| Chambre | Dimensions | Niveau | Revêtement |
|---|---|---|---|
| Hall d'entrée | 5.23 x 3.9 M | Rez-de-chaussée | Céramique |
| Salle d'eau | 5.7 x 1.80 M | Rez-de-chaussée | Bois |
| Cuisine | 5.23 x 4.39 M | Rez-de-chaussée | Bois |
| Penderie (Walk-in) | 2.28 x 1.80 M | Rez-de-chaussée | Bois |
| Salle à manger | 5.23 x 3.56 M | Rez-de-chaussée | Bois |
| Salon | 4.52 x 5.53 M | Rez-de-chaussée | Bois |
| Chambre à coucher principale | 4.3 x 4.38 M | 2ième étage | Bois |
| Penderie (Walk-in) | 1.1 x 4.38 M | 2ième étage | Bois |
| Salle de bains | 3.95 x 3.48 M | 2ième étage | Céramique |
| Salle de bains | 4.37 x 1.76 M | 2ième étage | Planchers chauffants au glycol |
| Chambre à coucher | 3.95 x 3.58 M | 2ième étage | Bois |
| Bureau à domicile | 4.37 x 2.92 M | 2ième étage | Bois |
| Salle familiale | 4.28 x 3.90 M | Sous-sol | Planchers chauffants au glycol |
| Bureau à domicile | 3.35 x 2.78 M | Sous-sol | Planchers chauffants au glycol |
| Chambre à coucher | 4.90 x 3.63 M | Sous-sol | Planchers chauffants au glycol |
| Salle de bains | 3.35 x 1.82 M | Sous-sol | Planchers chauffants au glycol |
| Salle mécanique | 4.70 x 2.52 M | Sous-sol | Planchers chauffants au glycol |
Caractéristiques
| Sous-sol | 6 pieds et plus, Totalement aménagé |
|---|---|
| Équipement disponible | Adoucisseur d'eau, Borne de recharge - niveau 2, Échangeur d'air, Installation aspirateur central, Thermopompe centrale |
| Mode de chauffage | Air soufflé, Radiant |
| Salle de bains/salle d'eau | Attenante à la chambre principale, Douche indépendante |
| Stationnement | Au garage, Extérieur |
| Particularités | Aucun voisin à l'arrière, Bordé par l'eau, Coin de rue, Cul-de-sac, Non navigable, Terrain boisé : feuillus, Villégiature/Chalet |
| Proximité | Autoroute/Voie rapide, Golf, Parc-espace vert, Piste cyclable, Sentier de motoneige, Sentier de VTT, Ski alpin, Ski de fond |
| Toiture | Bardeaux d'asphalte |
| Fondation | Béton coulé |
| Garage | Chauffé, Intégré |
| Type de fenêtre | Coulissante, Manivelle |
| Allée | Double largeur ou plus, Non pavée |
| Énergie pour le chauffage | Électricité |
| Topographie | En pente, Plat |
| Système d'égouts | Fosse septique |
| Foyers-poêles | Foyer au gaz |
| Vue | Panoramique, Sur l'eau |
| Aménagement du terrain | Patio, Paysager |
| Revêtements | Pierre |
| Approvisionnement en eau | Puits artésien |
| Fenêtres | PVC |
| Zonage | Résidentiel, Villégiature |