Propriété

Description

BORD DE L'EAU! Laissez-vous séduire par cette propriété clé en main soigneusement entretenue, nichée dans un environnement intime et ressourçant en pleine nature. 118PI sur le lac Stoke, elle offre un accès direct à l'eau ainsi qu'une vue imprenable sur le lac, orientée vers de magnifiques couchers de soleil. L'aire ouverte lumineuse met en valeur des murs de bois au cachet rustique, une cuisine avec vue sur l'eau et un salon chaleureux avec foyer au bois. Un second salon complète l'espace, de même qu'une salle de bain et une chambre. Terrain boisé de 14 143pi² sans voisin arrière,garage,lac propre et navigable sur bateau à moteur électrique.

Charmante propriété soigneusement entretenue et offerte clé en main, située au coeur de Stoke, dans un environnement naturel d'exception. Bordée par le lac Stoke, elle bénéficie de 118 Pieds sur le bord de l'eau ainsi que d'une vue à couper le souffle sur le lac, orientée du côté du coucher du soleil. Le terrain boisé assure une atmosphère paisible et ressourçante, idéale pour décrocher du quotidien.

L'intérieur charme par son concept à aire ouverte baigné de lumière, sublimé par des murs de bois au style rustique et chaleureux. La cuisine et la salle à manger profitent d'une vue imprenable sur l'eau, tandis que le salon, agrémenté d'un foyer au bois, crée une ambiance conviviale et accueillante. Un second salon complète l'espace, parfait pour la détente, un coin lecture ou selon vos besoins.

Le rez-de-chaussée comprend également une salle de bain complète, alors que le rez-de-jardin accueille une chambre à coucher confortable. À l'extérieur, la terrasse surplombant le lac invite à profiter pleinement du panorama et de la tranquillité des lieux, dans une intimité totale sans aucun voisin à l'arrière. Le terrain boisé de 14 143 pi² renforce ce sentiment de quiétude.

Ce havre de paix est complété par une thermopompe murale et un garage simple. Le lac, très propre et navigable avec bateau à moteur électrique, séduira les amateurs d'activités nautiques. À proximité des commodités et services essentiels, ainsi que de sentiers de randonnée pour les passionnés de plein air, cette propriété offre le parfait équilibre entre confort moderne et nature préservée.

Inclus : Électroménagers, meubles meublant, Pôle à rideaux et rideaux, Quai, Quai ponton (2021), Pédalo (2), Télévision salon, Accessoires extérieur, Gilets de sauvetage (4) (très bon état).

Exclus : Effets personnels des vendeurs.

Location


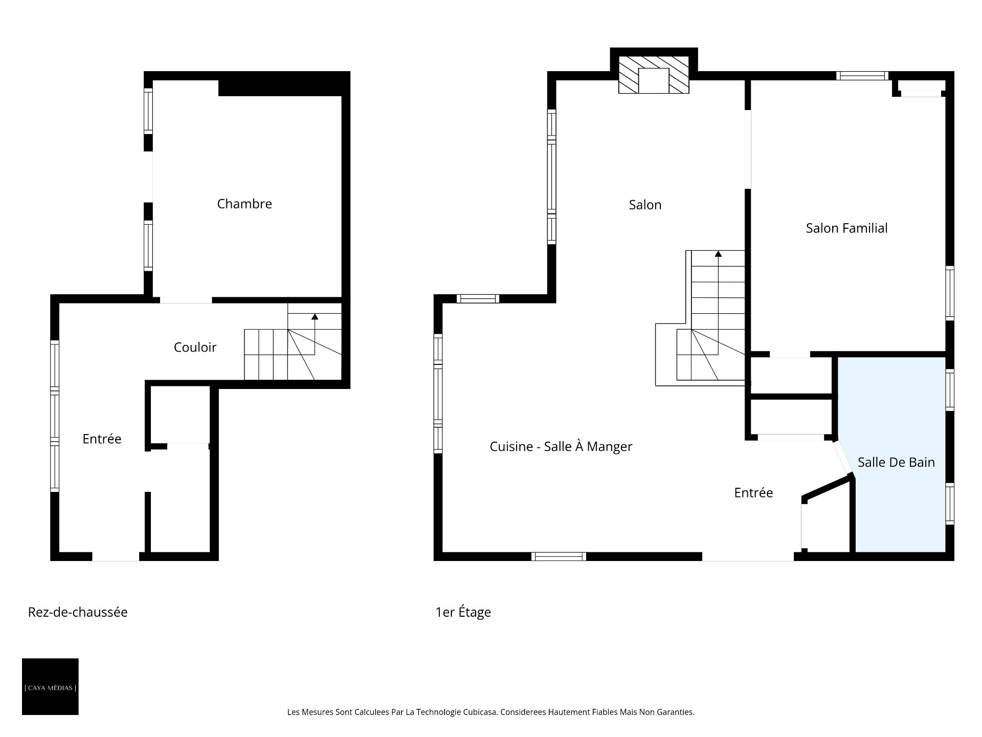
Détails des pièces

Chambre Dimensions Niveau Revêtement
Hall d'entrée 8.10 x 9.10 P Rez-de-chaussée Céramique
Cuisine et salle à manger 14.11 x 14.8 P Rez-de-chaussée Céramique
Salon 11.1 x 14.4 P Rez-de-chaussée Plancher flottant
Chambre à coucher principale 11.6 x 16.0 P Rez-de-chaussée Plancher flottant
Salle de bains 6.4 x 11.6 P Rez-de-chaussée Céramique
Chambre à coucher 11.1 x 12.9 P RJ Plancher flottant
Hall d'entrée 5.0 x 14.8 P RJ Plancher flottant

Caractéristiques

Particularités Accès à l'eau, Aucun voisin à l'arrière, Bordé par l'eau, Navigable, Terrain boisé : feuillus
Stationnement Au garage, Extérieur
Revêtements Autre
Toiture Bardeaux d'asphalte, Tôle
Fondation Béton coulé
Système d'égouts Champ d'épuration, Fosse septique
Garage Détaché, Simple largeur
Salle de bains/salle d'eau Douche indépendante
Proximité École primaire, Garderie/CPE
Énergie pour le chauffage Électricité
Topographie En pente, Plat
Foyers-poêles Foyer au bois
Type de fenêtre Guillotine, Manivelle
Allée Non pavée
Vue Panoramique, Sur l'eau, Sur la montagne
Aménagement du terrain Paysager
Mode de chauffage Plinthes à convection, Plinthes électriques
Approvisionnement en eau Puits artésien
Fenêtres PVC
Zonage Résidentiel
Équipement disponible Thermopompe murale

Contactez-moi

J'accepte d'être contacté par Mihail Adam par appel, email et SMS. Pour vous désinscrire, vous pouvez répondre 'stop' à tout moment ou cliquer sur le lien de désinscription dans les emails. Des frais de message et de données peuvent s’appliquer. Politique de confidentialite et Condition de services.